1. Tốc độ của thang máy chữa cháy
- TCVN 6396-72:2010 (hoàn toàn tương đương EN 81-72:2003): Quy định tại điểm 5.2.4 Thang máy chữa cháy phải đi tới tầng cao nhất so với tầng phục vụ chữa cháy trong thời gian 60 giây, cũng xem 0.5, tính từ lúc sau khi đóng các cửa của thang máy.
- EN 81-72:2015: Vẫn ≤ 60 giây, nhưng cho phép kéo dài đối với giếng thang lớn hơn 200 m (cứ mỗi 3 m tăng thêm thì cộng thêm 1 giây). Bổ sung nhằm phù hợp với các tòa nhà siêu cao tầng.
Cụ thể: Điểm 5.2.4 Thang máy chữa cháy phải có khả năng di chuyển từ tầng tiếp cận của lực lượng cứu hỏa lên tầng cao nhất được phục vụ trong hoạt động chữa cháy trong vòng 60 giây kể từ sau khi cửa cabin đóng lại. Tuy nhiên, với thang có hành trình lớn hơn 200 m, thời gian này có thể được tăng thêm 1 giây cho mỗi 3 m hành trình bổ sung.
Lưu ý: Kinh nghiệm cho thấy tốc độ định mức lớn hơn 4,5 m/s có thể gây ra các vấn đề về kỹ thuật, ví dụ như kích thước nguồn điện dự phòng, sự nhiễu loạn trong môi trường tăng áp, và khe hở trên nóc cabin.
2. Điều kiện vận hành thang máy chữa cháy trong trường hợp khẩn cấp
- TCVN 6396-72:2010 (hoàn toàn tương đương EN 81-72:2003): Tại Điểm 5.1.2 a) các thiết bị điện/điện tử điều khiển và các bộ chỉ thị điểm dừng tầng phải tiếp tục vận hành để lính chữa cháy có thể phát hiện được nơi cabin đỗ lại để làm nhiệm vụ giải cứu, ví dụ nơi cabin bị kẹt lại khi làm việc trong phạm vi nhiệt độ môi trường từ 0°C đến 65°C trong khoảng thời gian bằng thời gian yêu cầu đối với kết cấu, chẳng hạn, 2h.
- EN 81-72:2015: Quy định lại tại Điểm 5.2.5 a) Các thiết bị điện/điện tử ở cửa tầng (ngoại trừ tầng tiếp cận của lực lượng cứu hỏa) phải hoạt động bình thường trong dải nhiệt độ môi trường từ 0 °C đến 65 °C, hoặc được vô hiệu hóa. Sự cố của các thiết bị này (chỉ thị tầng và nút bấm gọi tầng) không được cản trở hoạt động của thang trong điều kiện chữa cháy.
=>> Tiêu chuẩn mới linh hoạt hơn, cho phép thiết bị ở cửa tầng bị vô hiệu hóa, nhưng phải đảm bảo không ảnh hưởng đến hoạt động cứu hỏa.
Ngoài ra, Tiêu chuẩn EN 81-72:2015 còn bổ sung thêm:
Điểm 5.2.5 d) Bất kỳ cảm biến nhiệt độ môi trường nào cũng không được phép dừng hoặc ngăn chặn việc khởi động thang máy chữa cháy.
3. Khoảng cách tối đa giữa các chiếu nghỉ
- TCVN 6396-72:2010 (hoàn toàn tương đương EN 81-72:2003): Không đề cập cụ thể
- EN 81-72:2015: Đề cập cụ thể tại Điểm 5.2.7.
Cụ thể: 5.2.7 Khi khoảng cách giữa các ngưỡng cửa tầng liên tiếp vượt quá 7 m, phải bố trí cửa thoát hiểm trung gian, sao cho khoảng cách giữa các ngưỡng cửa không lớn hơn 7 m. Ngoài ra, cần xem xét đến chiều dài tối đa của thang được quy định tại 5.4.2.4.
CHÚ THÍCH: Khoảng cách giữa các tầng có thể lớn hơn nếu có tính toán phù hợp với thang dài 6 m.
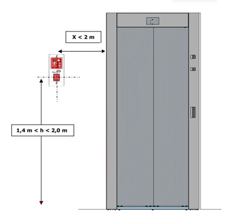
4. Vị trí lắp đặt công tắc thang máy chữa cháy tại tầng tiếp cận của lực lượng chữa cháy
- TCVN 6396-72:2010 (hoàn toàn tương đương EN 81-72:2003): Quy định tại 5.8.1.
+ Công tắc ở hành lang của tầng phục vụ chữa cháy.
+ Trong phạm vi 2 m tính theo phương ngang từ thang máy chữa cháy.
+ Chiều cao từ 1,8 m đến 2,1 m so với sàn.

- EN 81-72:2015: Hạ độ cao lắp công tắc và được quy định tại 5.8.1
+ Công tắc đặt trong khu vực an toàn tại tầng phục vụ chữa cháy.
+ Trong phạm vi 2 m tính theo phương ngang.
+ Chiều cao từ 1,4 m đến 2,0 m (thấp hơn so với bản 2003 để dễ tiếp cận).
5. Bảo vệ tránh nước đối với thiết bị điện
5.1 Bổ sung mức độ IPX1 cho thiết bị trong giếng thang xa cửa tầng hơn 1 m
- TCVN 6396-72:2010 (hoàn toàn tương đương EN 81-72:2003): Thiết bị điện trong giếng thang, trên nóc cabin, trong phạm vi 1 m tính từ thành giếng có cửa tầng → phải bảo vệ tránh nước nhỏ giọt/ tia nước phun, đạt IPX3.
- EN 81-72:2015: Bổ sung bảo vệ tránh nước với các thiết bị điện nằm trong phạm bi lớn hơn 1 m.
Cụ thể: Điểm 5.3.1 “.... Thiết bị điện bên trong giếng thang máy chữa cháy, nằm dưới tầng dừng cao nhất, ở vị trí xa hơn 1,0 m so với tường có cửa tầng, phải được bảo vệ chống lại hiện tượng nhỏ giọt từ tầng trên bằng vỏ bảo vệ đạt ít nhất cấp IPX1 theo EN 60529. Xem Phụ lục D.”

5.2 Bổ sung yêu cầu về thiết kế thoát nước cho nóc cabin, nâng mức an toàn.
- TCVN 6396-72:2010 (hoàn toàn tương đương EN 81-72:2003): Không có quy định
- EN 81-72:2015: Nóc cabin phải thiết kế chống đọng nước, có thoát nước điều khiển, thiết bị điện trên nóc cabin và vách ngoài đạt IPX3.
Cụ thể: Điểm 5.3.5 Nóc cabin phải được thiết kế để tránh tích tụ nước và tạo điều kiện thoát nước có kiểm soát. Thiết bị điện trên nóc cabin và các mặt ngoài cabin phải đạt ít nhất cấp IPX3 theo EN 60529.

Nóc cabin thang máy chữa cháy phải được thiết kế để ngăn nước tích tụ và tạo điều kiện thoát nước có kiểm soát từ nóc.Trong hình: cabin thang máy chữa cháy được trang bị lỗ thoát nước.
6. Cửa sập thoát hiểm trên nóc cabin
- TCVN 6396-72:2010 (hoàn toàn tương đương EN 81-72:2003): Quy đinh tại Điểm 5.4.1 và 5.4.2. Tiêu chuẩn chỉ nêu yêu cầu về kích thước và yêu cầu không có vật cản, trần treo phải tháo được.
- EN 81-72:2015: Được quy định cụ thể hơn tại Điểm 5.4.1, Tiêu chuẩn EN 81-72:2015 bổ sung: Lực cần thiết để tác động lên bất kỳ bộ phận nào của trần cabin thang máy và cửa sập khẩn cấp phải nhỏ hơn 250 N.. Các điểm mở khóa phải được nhận biết rõ ràng từ bên trong và bên ngoài cabin.
Ngoài ra, phải thực hiện các biện pháp để tránh nguy cơ trần treo bị rơi không kiểm soát sau khi được mở ra. Việc mở bất kỳ trần cabin phải được thực hiện dễ dàng đối với lính cứu hỏa đang bị kẹt bên trong cabin. Khóa cửa sập thoát hiểm là khóa tam giác.
Ngoài ra, mục 5.4.1.3, Tiêu chuẩn EN 81-72:2015 cũng bổ sung thêm một yêu cầu an toàn vô cùng quan trọng, trong trường hợp cửa sập thoát hiểm trên nóc cabin được mở ra, thì:
– Thang máy phải tự động dừng hoạt động ngay lập tức.
– Kể cả khi cửa sập được đóng lại, thang vẫn không được hoạt động trở lại trừ khi có hành động chủ động khôi phục, cho phép thang máy hoạt động trở lại.

7. Loại bỏ thang cố định, thang dây là phương tiện cứu hộ từ bên ngoài cabin
- TCVN 6396-72:2010 (hoàn toàn tương đương EN 81-72:2003): Quy định tại điểm 5.4.3 cho phép dùng thang cố định được bố trí phía trên các ngưỡng cửa của lối vào tầng dừng trong khoảng 0,75m, thang xách tay, thang dây, hoặc hệ thống cáp an toàn. Tất cả các phương tiện này do nhà chức trách địa phương chịu trách nhiệm, không phải của nhà sản xuất thang máy.
- EN 81-72:2015: Loại bỏ thang dây và thang cố định được bố trí phía trên các ngưỡng cửa của lối vào tầng dừng trong khoảng 0,75m. Bổ sung quy định cung cấp các điểm cố định an toàn khi sử dụng dây cáp để cứu hộ.
=>> Trong các tòa nhà cao tầng, việc lắp đặt thang cố định liên tục dọc theo giếng thang hoặc bố trí tại các cửa tầng của thang máy chữa cháy thiếu tính khả thi, gây tốn kém chi phí xây dựng và bảo trì. Trong khi đó, thang dây tiềm ẩn nhiều nguy hiểm cho lực lượng cứu hộ, kém an toàn hơn so với việc sử dụng thang rút di động.
Chính vì vậy, EN 81-72:2015 đã loại bỏ yêu cầu về thang cố định và thang dây, thay thế bằng các giải pháp linh hoạt, an toàn và phù hợp hơn cho công tác tiếp cận và cứu hộ.

Tiêu chuẩn mới loại bỏ việc trang bị thang cứu hộ dọc giếng thang máy và thang cứu hộ ngoài các cửa tầng giúp giảm thiểu chi phí đầu tư xây dựng và bảo trì. Trong ảnh: Giếng thang máy chữa cháy được trang bị thang cứu hộ dọc giếng thang theo tiêu chuẩn cũ.
Cụ thể, quy định tại điểm 5.4.3 Cứu hộ từ bên ngoài cabin:
Phương tiện cứu hộ có thể bao gồm:
a) thang di động;
b) hệ thống cáp an toàn, trong đó có cung cấp các điểm cố định an toàn cho phương tiện cứu hộ ở gần mỗi tầng;
Lưu ý: Tất cả các phương tiện này thuộc trách nhiệm của Cơ quan chức năng địa phương, không phải của nhà sản xuất thang máy.
Phương tiện cứu hộ phải cho phép tiếp cận an toàn nóc cabin, bất kể khoảng cách từ nóc cabin đến ngưỡng cửa tầng gần nhất là bao nhiêu. Phải có thang để đi xuống cabin từ nóc cabin. Thang này phải tuân thủ 5.4.2 và được triển khai từ nóc cabin, và có thể chính là thang được dùng cho cứu hộ từ trong cabin.

Trong trường hợp sử dụng hệ thống dây cáp để tiếp cận nóc cabin, tòa nhà cần thiết kế các điểm neo dây cứu hộ cố định tại các cửa tầng.
8. Sửa đổi quy định về thang cứu hộ thành một điểm quy định riêng tại 5.4.2.
- TCVN 6396-72:2010 (hoàn toàn tương đương EN 81-72:2003): Quy định về thang cứu hộ bên trong cabin, bên ngoài cabin rải rác tại các điểm có liên quan, chưa tập trung.
- Tiêu chuẩn EN 81-72:2015: Quy định riêng tại Điểm 5.4.2 về tiêu chuẩn của thang cứu hộ. Bổ sung điều khoản quan trọng về quy định thang máy phải dừng hoạt động khi thang cứu hộ không nằm ở vị trí cất giữ.
Cụ thể: 5.4.2 Thang
5.4.2.1 Thang phải tuân theo EN 131-1 và được cất giữ ở vị trí tránh gây nguy cơ vấp ngã trong quá trình bảo trì thông thường, đồng thời có thể triển khai an toàn.
5.4.2.2 Phải trang bị thiết bị an toàn điện phù hợp với EN 81-20:2014, 5.11.2 để ngăn thang máy hoạt động nếu thang không ở vị trí cất giữ.
5.4.2.3 Khi cung cấp thang di động để phục vụ quy trình cứu hộ giữa cabin và nóc cabin, chiều dài thang phải dài hơn ít nhất 1 m so với chiều cao cabin và được đặt ở phía ngắn hơn của cửa thoát hiểm khẩn cấp.
5.4.2.4 Chiều dài thang di động phục vụ cứu hộ từ nóc cabin đến tầng phải đảm bảo cho lính cứu hỏa có thể mở cơ cấu khóa cửa tầng kế tiếp từ trong cabin, nhằm cho phép ra khỏi nóc cabin. Chiều dài tối đa của thang di động là 6 m. Thang không được tựa vào cửa tầng và phải được đỡ từ các điểm cố định thích hợp trên nóc cabin. Cửa tầng phải có khả năng mở được bằng một tay.

Trong trường hợp thang không nằm tại vị trí cất giữ, thang máy phải dừng hoạt động. (Trong ảnh: Lính cứu hỏa sử dụng thang thoát hiểm bên trong cabin để tiếp cận cửa thoát hiểm)
9. Chỉnh sửa quy định về bậc bước trong cabin thang máy.
- TCVN 6396-72:2010 (hoàn toàn tương đương EN 81-72:2003): Được quy định tại điểm 5.4.4. Trong trường hợp cabin thang máy không trang bị thang cứu hộ mà sử dụng các bậc bước, các bậc phải thiết kế với độ cao lớn nhất của bậc là 0,4m. Bất cứ bậc nào cũng phải có khả năng đỡ được tải trọng 1200N. Khoảng trống giữa bất cứ bậc thang nào và tường thẳng đứng ít nhất phải là 0,1m.
- EN 81-72:2015: Tăng tải trọng bậc, khoảng hở giữa bậc với vách.
Cụ thể: 5.4.4 Tự cứu hộ từ trong cabin: “...Nếu dùng bậc bước, chiều cao bậc tối đa là 0,4 m, mỗi bậc phải chịu được tải trọng 1.500 N và khoảng cách tự do giữa bậc bước và tường thẳng đứng (vách cabin) ít nhất là 0,15 m.”

Hình ảnh cabin thang máy được trang bị bậc bước cứu hộ
https://tapchithangmay.vn/thang-may-chua-chay-cac-yeu-cau-co-ban-va-chi-so-chong-nuoc-chiu-lua-moi-nhat/





![[Cập nhật] Thông tin mời thầu thang máy mới nhất ngày 15/01/2026 [Cập nhật] Thông tin mời thầu thang máy mới nhất ngày 15/01/2026](https://media.tapchithangmay.vn/share/web/image/2026/1/tonghopphantichhosothaumoinhat639035499049916320_260x155.jpg)









![[Ảnh] Ấn tượng Vietnam Elevator Expo 2025 [Ảnh] Ấn tượng Vietnam Elevator Expo 2025](https://media.tapchithangmay.vn/share/web/image/2026/1/anhantuongvietnamelevatorexpo20251639038056084786741_350x210.webp)
![[Cập nhật] Thông tin mời thầu thang máy mới nhất ngày 15/01/2026 [Cập nhật] Thông tin mời thầu thang máy mới nhất ngày 15/01/2026](https://media.tapchithangmay.vn/share/web/image/2026/1/tonghopphantichhosothaumoinhat639035499049916320_495x300.jpg)























