Ths Kts Phạm Hoàng Phương, Viện Kiến trúc quốc gia (Bộ Xây dựng)
Ths. Kts Trần Văn Bộ

Hình 1: Không gian trường THCS Cầu Giấy (Hà Nội), công trình đạt giải thưởng kiến trúc quốc gia năm 2021 trên cơ sở đạt được đồng bộ nhiều tiêu chí đổi mới thiết kế kiến trúc trường học theo chuẩn giáo dục quốc gia và tiệm cận một số các xu hướng giáo dục quốc tế tiên tiến trong khu vực và quốc tế. (nguồn ảnh: tác giả và công ty LD Sunjin Việt Nam)
Một hạng mục ít thấy trong các công trình trường học trước đây
Trong thời gian trước đây, hạng mục thang máy thường ít được bắt gặp trong các công trình trường học cũ. Điều này cũng gây nên nhiều hạn chế cho kiến trúc các trường học như chất lượng tiện nghi sử dụng thấp, không theo kịp và cũng như cho phép chuyển đổi nhanh theo các phương thức giáo dục mới. Nguyên nhân của việc này đến từ nhiều nhóm lý do khách quan và chủ quan khác nhau.
Về nhóm lý do khách quan, trước tiến điều này bắt nguồn từ những khó khăn về tài chính đầu tư dự án. Trong bối cảnh nguồn lực đầu tư trong nhiều giai đoạn trước đây đối với hầu hết các thể loại công trình dân dụng, đặc biệt là công trình giáo dục còn hạn hẹp. Bên cạnh đó, nguồn cung thiết bị thang máy đảm bảo chất lượng trong nhiều năm là rất hạn chế, chủ yếu phải nhập khấu và thiếu hoàn toàn sự tự chủ trong nước, nên thang máy hầu như chỉ xuất hiện tại các công trình trọng điểm và cao cấp, vắng mặt hoàn toàn trong các công trình trường học.
Về nhóm lý do chủ quan, về cơ bản kiến trúc trường học trong nhiều giai đoạn trước đây chịu ảnh hưởng lớn thời bao cấp nên thường rất khô cứng theo khuôn mẫu hình chữ L hoặc chữ U. Bố cục các không gian chức năng gồm các lớp học, khu hiệu bộ, khu thể chất… chủ yếu áp dụng giải pháp bố cục dàn trải theo chiều ngang. Chiều cao tổng thể của các khối công trình chức năng cũng không quá lớn, thường chỉ từ 2 – 3 tầng. Trường hợp cao từ 4 -5 tầng là rất ít. Do vậy, hệ thống giao thông theo chiều đứng được thiết kế bên trong công trình chủ yếu là thang bộ, gàn như hoàn toàn không có sự xuất hiện của hệ thống thang máy.



Hình 2: Thiết kế kiến trúc Trường THCS Cầu Giấy (Hà Nội) với giải pháp cấu trúc thang máy tích hợp cùng thang bộ cho phép bố trí các không gian phụ trợ như nhà thể chất đa năng, thư viện trên các tầng cao mà vẫn đảm bảo chất lượng tiện nghi sử dụng, đồng thời dành các tầng thấp tiện nghi nhất cho không gian lớp học đạt chuẩn giáo dục quốc gia – công trình đạt giải thưởng Kiến trúc Quốc gia năm 2021 (nguồn ảnh: tác giả và công ty LD Sunjin Việt Nam)
Thang máy - Giải pháp quan trọng hỗ trợ đổi mới thiết kế kiến trúc trường học
Kể từ khi nền kinh tế Việt Nam có sự chuyển mình, công cuộc Công nghiệp hoá – hiện đại hoá được đẩy mạnh, đặc biệt là nền giáo dục Việt Nam ngoài hình thức công lập còn có có sự tham gia mạnh mẽ của nhiều đơn vị tổ chức ngoài công lập đã cho phép thúc đẩy sự hội nhập và gia tăng nhu cầu đổi mới toàn diện công tác dậy vào học trong những năm gần đây. Đặc biệt, cùng với sự kiện Bộ Giáo dục và Đào tạo chính thức công bố chuẩn giáo dục quốc gia mới được và việc nhiều trường cả công lập, ngoài công lập triển khai tiếp thu nhiều phương thức giáo dục mới từ nhiều quốc gia phát triển trên thế giới như: STEM, MONTESSORY,… đã tạo nên yêu cầu cấp thiết cần sớm đổi mới toàn diện phương pháp tiếp cận trong thiết kê tổ chức không gian trường học.

Hình 3: Dù được thiết kê bố trí trên tầng 2, không gian thư viện của Trường THCS Cầu Giấy (Hà Nội) – công trình đạt giải thưởng Kiến trúc Quốc gia năm 2021, vẫn đạt được tính tiện nghi dù được bố trí trên tầng 3 của toà nhà chính nhờ giải pháp thiết kế đồng bộ hệ thống thang máy tiện ích với thang bộ thành các trục giao thông đứng tại các vị trí nút giao thông liền kề (nguồn ảnh: tác giả và công ty LD Sunjin Việt Nam)
Trong đó, tiêu chí “Lấy học sinh làm trung tâm” và “Để mỗi ngày học sinh đến trường là một ngày vui” đã được đề ra có thể xem là một tiêu chí đổi mới quan trọng nhất cần được chú ý và có các bước chuyển biến cơ sở vật chất công trình trường học đi kèm. Để đạt được tiêu chí như trên, thay vì các mô hình thiết kế trường học cũ và cứng nhắc trước đây, các phòng học văn hoá dành cho học sinh cần được đặt ở các vị trí thuận lợi nhất như ở các tầng thấp, đón nhiều gió mát, tránh các vị trí có bức xạ nhiệt cao hoặc bất lợi vể tổ chức thông gió và chiếu sáng tự nhiên. Đặc biệt, tầng cao các khối chức năng cũng có thể đẩy lên tối đa mức điều kiện cho phép (hiện nay một số trường học nội đô tại nhiều thành phố lớn đã được xây mới có chiều cao từ 5 -6 tầng).
Đồng thời, nghiên cứu dịch chuyển các không gian chức năng phụ trợ như khu hiệu bộ, phòng thụ viện, phòng thí nghiệm, và cả nhà đa năng lên các tầng trên cao, thâm chí là tầng cao nhất. Hiện nay không thiếu các công trình trường học xây mới, dù có các phòng đa năng TDTT trên tầng cao nhưng vẫn đạt được tính tiện nghi và hiệu quả. Để vẫn đảm bảo đầy đủ tính tiện nghi tiếp cận sử dụng, an toàn thoát hiểm khi có tai nạn sự cố xảy ra, an toàn PCCC…cùng với hệ thống thang bộ đạt chuẩn, các hệ thống thang máy thoát hiểm trường học được thiết kế và lắp đặt đồng bộ cũng có thể được xem là giải pháp rất quan trọng cho phép đạt được điều này.
Về giải pháp thiết kế, thang máy có thể được bố trí với số lượng hợp lý tại các vị trí liền kề với thang bộ để tạo thành trục giao thông đứng trong công trình cho phép kết nội thuận tiện, an toàn, tiện nghi từ tầng 1 lên các tầng trên. Cùng với đó, có thể thiết kế bổ sung thêm một số hệ thống thang hàng và thang thoát hiểm đặt chuẩn tại các vị trí điểm nút giao thông giúp tối ưu cao nhất hiệu suất sử dụng. Hệ thống thang máy chở hàng, ngoài vái trò tham gia hỗ trợ vận chuyển người còn đóng vai trò thiết thực vận chuyển hàng hoá lên các khong gian chức năng phụ trợ thiết yếu (như nhà ăn, phòng thư viện, khối hiệu bộ ở các tầng trên cao).
Về chủng loại và tiêu chí lựa chọn thiết bị, việc ưu tiên các chủng loại tốt có độ bền cao, chi phí đầu tư lắp đặt phù hợp và bảo trì vận hành sẽ cho phép tiết kiệm đáng kể nguồn lực đầu tư và bảo trì. Đặc biệt là các hệ thống thang máy có độ bền cao, có nhiều chế độ sử dụng (lúc cao điểm và thấp điểm), sẽ cho phép phù hợp với tần suất và cách thức sử dụng của học sinh và giáo viên theo nhiều khung giờ và chế độ chức năng phục vụ.
Về thẩm mỹ, các hệ thống thang máy trường học có nhiều hình thức trang trí bắt mắt cũng sẽ tạo nên không khí vui tươi, phù hợp với tâm sinh lý lứa tuổi học đường.

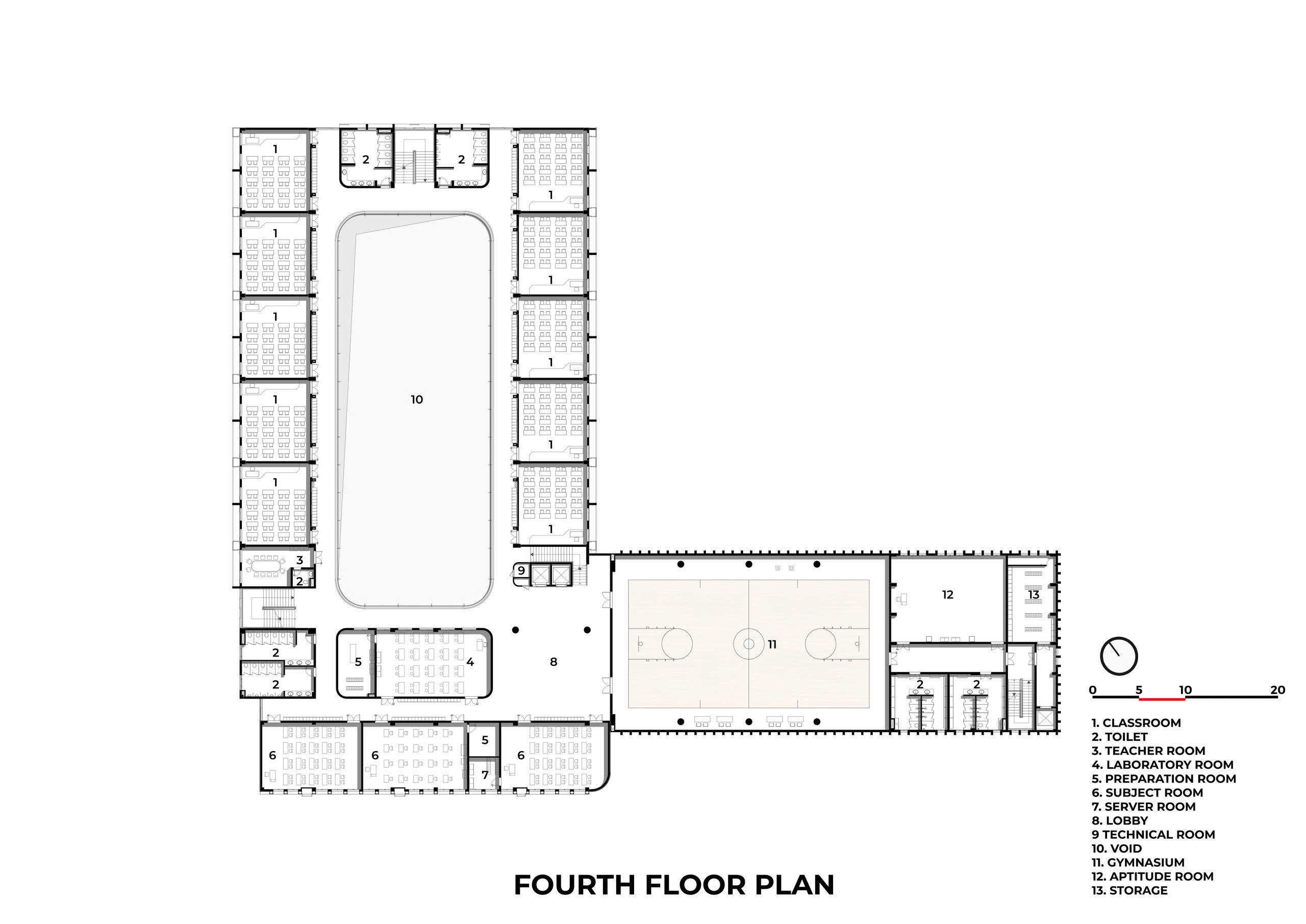
Hình 4: Sơ đồ cấu trúc tổ chức không gian trường THCS Cầu Giấy (Hà Nội với các không gian phụ trợ như thu viện, khu hiệu bộ, nhà thể chất đa năng… được bố trí trên các tầng cao vẫn đảm bảo an toàn tiện nghi thông qua các giải pháp bố trí (nguồn ảnh: tác giả và công ty LD Sunjin Việt Nam)
KẾT LUẬN
Sự ra đời của thang máy dưới vai trò là một hạng mục cơ điện trong công trình kiến trúc đã giúp gia tăng đánh kể chất lượng tiện nghi sử dụng công trình dân dụng nói chung. Đặc biệt, việc đẩy mạnh áp dụng các hệ thống thang máy cho công trình trường học các cấp qua quá trình thể nghiệm tại nhiều dự án trong thực tiễn thời gian qua, cũng có thể được xem là một trong những giải pháp quan về hỗ trợ đổi mới toàn diện thiết kế kiến trúc trường học đạt chuẩn giáo dục quốc gia mới và tiệm cận với các phương thức giáo dục tiên tiến tiến trên thế giới thời kỳ hội nhập và kỷ nguyên vươn mình.







































